Einfamilienhaus PB 034
Architekturstil:
klassisch
Keller:
mit Keller
Dachform:
Sattel- / Krüppelwalmdach
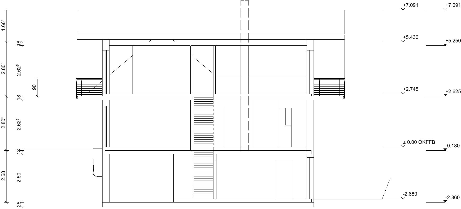
Hausdaten
| Grundrisskomplexität | normal - 8 Ecken |
| Hauslänge | 10,31 m |
| Hausbreite | 7,81 m |
| Architekturstil | klassisch |
| Dachkomplexität | simpel |
| Keller | mit Keller |
| Dachform | Sattel- / Krüppelwalmdach |
| Dachneigung | 40° / 26° |
| Kniestock | 0,90 m |
| Geschossanzahl | 1,5-geschossig |
| Grundfläche | 256,17 m² |
| Wohnfläche | 204,46 m² |
Wohnräume
| Büro 1 | 16,83 m² |
| Büro 2 | 16,56 m² |
| Diele | 3,21 m² |
| Dusche | 4,49 m² |
| Flur | 8,27 m² |
| Heizraum | 10,82 m² |
| Diele | 7,45 m² |
| Kind 1 | 14,51 m² |
| Kind 2 | 14,49 m² |
| Küche | 29,14 m² |
| SPK | 3,27 m² |
| WC | 3,32 m² |
| Ankleide | 11,57 m² |
| Bad | 11,12 m² |
| Balkon | 4,31 m² |
| Balkon | 3,60 m² |
| Schlafen | 14,52 m² |
| Wohnen | 26,98 m² |
Starten Sie Ihr Hausprojekt mit uns!
Kontaktieren Sie uns.
Wir freuen uns, Ihre Fragen zu beantworten.