Mehrfamilienhaus PB 105
Architekturstil:
klassisch
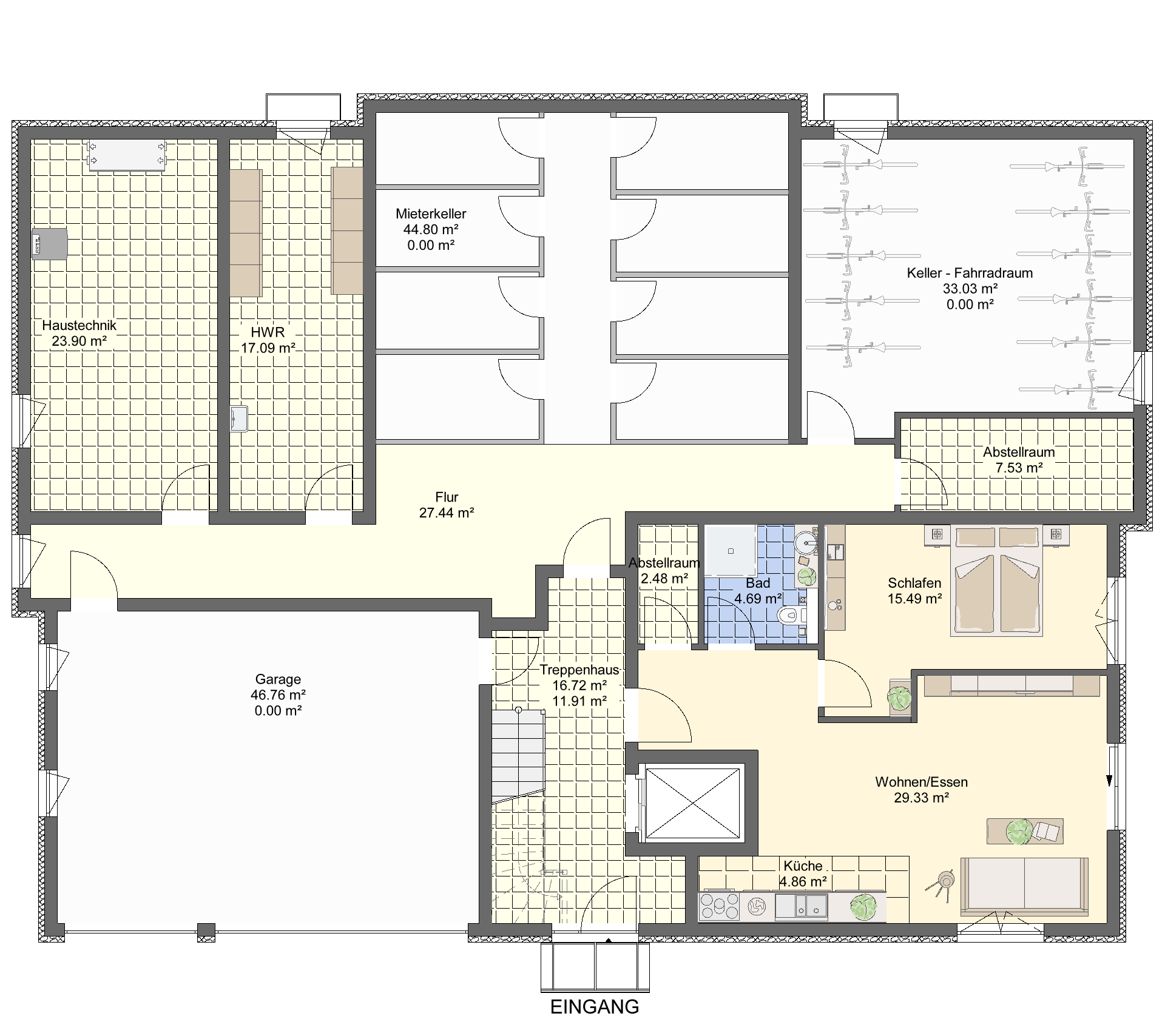
Keller:
mit Keller
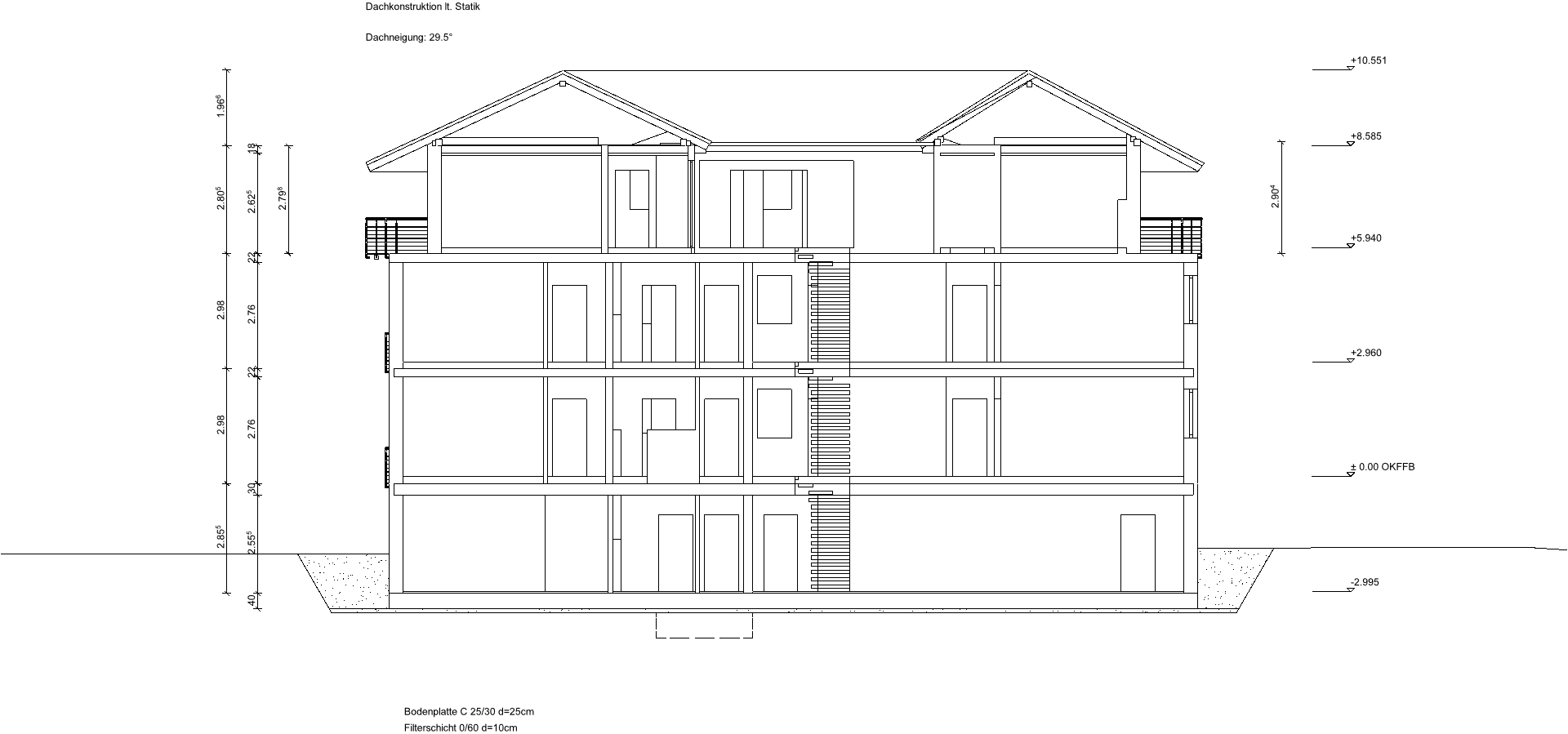
Dachform:
Walmdach
Hausdaten
| Hauslänge | 21,49 m |
| Hausbreite | 15,99 m |
| Architekturstil | klassisch |
| Keller | mit Keller |
| Dachform | Walmdach |
| Dachneigung | 32 / 26 / 43 / 25 / 28 / 30 / 46° |
| Kniestock | 2,80 / 3,56 / 2,80 / 2,90 / 3,15 / 2,90 m |
| Geschossanzahl | 2,5-geschossig |
| Grundfläche | 1.258,38 m² |
| Wohnfläche | 953,31 m² |
Wohnräume
| Abstellraum | 7,53 m² |
| Abstellraum | 2,48 m² |
| Bad | 4,69 m² |
| Flur | 27,44 m² |
| Haustechnik | 23,90 m² |
| HWR | 17,09 m² |
| Küche | 4,86 m² |
| Schlafen | 15,49 m² |
| Treppenhaus | 11,91 m² |
| Wohnen/Essen | 29,33 m² |
| Abstellraum | 2,48 m² |
| Abstellraum | 2,36 m² |
| Bad | 7,38 m² |
| Bad | 9,86 m² |
| Balkon | 4,29 m² |
| Balkon | 3,76 m² |
| Diele | 14,14 m² |
| Diele | 13,11 m² |
| Dusche | 3,52 m² |
| Dusche | 4,69 m² |
| Dusche | 3,14 m² |
| Flur | 1,94 m² |
| Kind | 14,99 m² |
| Kind 1 | 12,14 m² |
| Kind 2 | 12,79 m² |
| Küche | 6,20 m² |
| Küche | 8,01 m² |
| Küche | 2,73 m² |
| Schlafen | 9,36 m² |
| Schlafen | 14,90 m² |
| Schlafen | 14,50 m² |
| Treppenhaus | 25,90 m² |
| Wohnen/Essen | 36,42 m² |
| Wohnen/Essen | 17,99 m² |
| Wohnen/Essen | 26,72 m² |
| Abstellraum | 2,48 m² |
| Abstellraum | 2,36 m² |
| Abstellraum | 1,29 m² |
| Bad | 7,38 m² |
| Bad | 6,06 m² |
| Bad | 9,86 m² |
| Balkon | 4,14 m² |
| Balkon | 4,29 m² |
| Balkon | 3,76 m² |
| Balkon | 7,21 m² |
| Balkon | 4,14 m² |
| Diele | 13,11 m² |
| Diele | 14,14 m² |
| Dusche | 3,14 m² |
| Dusche | 4,69 m² |
| Kind | 14,99 m² |
| Kind 1 | 12,14 m² |
| Kind 2 | 12,79 m² |
| Küche | 4,07 m² |
| Küche | 8,01 m² |
| Küche | 6,20 m² |
| Schlafen | 11,74 m² |
| Schlafen | 14,50 m² |
| Schlafen | 14,90 m² |
| Treppenhaus | 11,92 m² |
| Wohnen/Essen | 26,97 m² |
| Wohnen/Essen | 28,03 m² |
| Wohnen/Essen | 36,42 m² |
| Abstellraum | 1,38 m² |
| Ankleide | 11,62 m² |
| Bad | 8,49 m² |
| Dachterrasse | 57,58 m² |
| Diele | 7,15 m² |
| Dusche | 7,37 m² |
| Essen | 29,28 m² |
| Flur | 7,16 m² |
| Flur | 2,28 m² |
| Garderobe | 7,82 m² |
| HWR | 4,66 m² |
| Kind 1 | 11,85 m² |
| Kind 2 | 13,55 m² |
| Küche | 22,80 m² |
| Schlafen | 16,35 m² |
| Treppenhaus | 4,74 m² |
| Wohnen | 30,46 m² |
Starten Sie Ihr Hausprojekt mit uns!
Kontaktieren Sie uns.
Wir freuen uns, Ihre Fragen zu beantworten.